stehlík architekti novinky o nás realizace projekty ocenění kontakt rodinné domy

Základními kompozičními prvky jsou sokl domu a vlastní hmota domu formovaná do tvaru L, která je ukončená sedlovými střechami, jež jsou typickým prvkem pro okolní zástavbu. Zajímavost a pestrost fasád vytváří střídající se kompozice různých oken. Vstupní nádvoří vnitrobloku definuje fasáda, navržená jako kompozice dřevěných panelů a okenních otvorů. Každý byt má, při splnění  hygienických požadavků, možnost různých prostorových uspořádání, která jsou možná vzhledem k variabilitě a proměnnosti okenních otvorů.

 

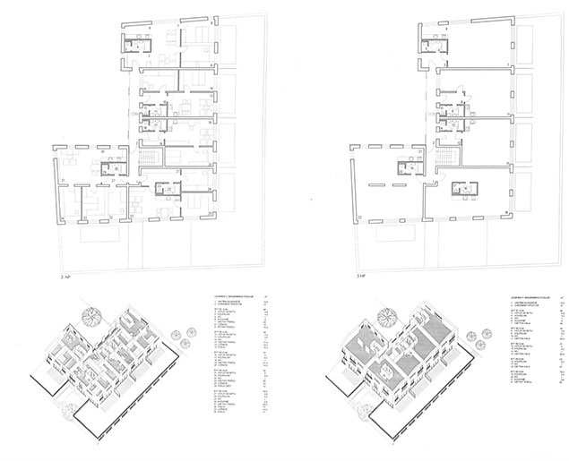
Dům se startovacími byty je koncipován ve 4 podlažích. Podzemní podlaží slouží pouze  pro umístění sklepních boxů, kolárny a místnosti pro kočárky. Spojuje komunikaci bytového domu s dvorkem při JZ fasádě objektu a tvoří tak druhý vstup do objektu. V prostoru dvorku budou také umístěny nádoby na domovní odpad. Na stejné výškové úrovni jsou řešeny i garáže, které jsou ale samostatnou stavební i investiční jednotkou. Bytový dům obsahuje 15 bytů.Vstupní podlaží objektu  je bezbariérově přístupné z terénu . Dům má jedno vnitřní schodiště a krátkou přístupovou arkádu k bytům. Na schodiště je napojeno tímto způsobem 5 bytů – 2x 2+kk a 3x 3+kk. Další dvě podlaží mají stejný počet bytů, dva jsou napojeny přímo ze schodiště a tři z arkády. Každý byt je řešen tak, aby umožňoval variabilní řešení vnitřního prostoru, od základní volné dispozice s vymezením a oddělením místa pro hygienické a sociální zázemí a kuchyňskou linku až po vymezení jednotlivých funkcí bytu příčkami. Toto variabilní využití prostoru je předností každého bytu a je dokumentováno na výkresech jednotlivých podlaží. Konkrétní dispozice jednotlivých bytů budou upraveny v souvislosti s požadavky konkrétních nájemníků při dodržení všech normových a hygienických požadavků. Byty v 1.nadzemním podlaží jsou obohaceny existencí plochy střešní zahrádky na střeše garáží a možností propojení bytu s venkovním prostorem.

 

 

BYTOVÝ DŮM MIROSLAV INVESTOR: MĚSTO MIROSLAV 2001 AUTOŘI: PROF. ING. ARCH. MILAN STEHLÍK, ING. ARCH. ALENA STEHLÍKOVÁ, ING. ARCH. MARTIN NAVRKAL, ING. ARCH. TOMÁŠ DVOŘÁK
INFO

© STEHLÍK ARCHITEKTI 1993-2021, ALL RIGHTS RESERVED