stehlík architekti novinky o nás realizace projekty ocenění kontakt rodinné domy

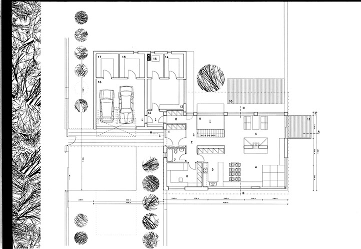
Hmota objektu vychází z velmi jednoduché kompoziční skladby, založené na zářezu do terénu  opěrnou zdí s půdorysem ve tvaru z . Kamenná zeď prochází exteriérem kde vyznačuje sklon pozemku, vstupuje do domu, kde se stává hlavním motivem interiéru a zase vystupuje ven do exteriéru.

Výškové nasazení objektu je určeno charakterem sklonu pozemku, jež je v diagonále převýšení odpovídajícímu jednomu patru.

 

Tato hra s terénem je potom dále doplněna kompozicí stavěných objektů  -  4 dřevěných hranolů, definujících ložnicovou část domu, na nich a opěrné zdi postaveném hranolu denní zóny  s bílou fasádou  perforovaným otvory různé typologie. Kompozici doplňuje nízký hranol technických zařízení a garáže zaříznutý do terénu s povrchem z  dřevěných palubek. Filosofie materiálového řešení se maximálně snaží přiblížit přírodnímu prostředí. Proto jsou použity přírodní ekologické materiály úmyslně v jednoduché formě, aby tak správně kompozičně kontrastovaly s krásou přírodního rámce vlastního pozemku.

 

Objem je orientován napříč pozemku, aby mohl maximálně na sebe pojímat dimenze podélného pozemku. Dvoupatrová orientace do terénu dělí zahradu na veřejnou- obytnou a soukromou - intimní. Obě zahrady tak poskytují zajímavé prostorové  průhledy mezi řadami stromů z interiérů místností . Koncepce pokračování interiéru v exteriéru je patrná v příčném řezu. Proto je zde také navrženo extremně velké vysazení římsy střechy 2400mm aby bylo dosaženo prostorové pokračování interiéru. Střecha je dvouplášťová s výrazným tvarováním vytvořeným lepenými nosníky.

Pro výhled do krajiny je navržen samostatný balkón, vyvěšený jako kapitánský můstek na táhlech. Obytnost exteriéru doplňují dřevěné podlahové rošty.

 

 

RD JINAČOVICE SOUKROMÝ INVESTOR 2004 AUTOŘI: PROF. ING. ARCH. MILAN STEHLÍK, ING. ARCH. ALENA STEHLÍKOVÁ
INFO

© STEHLÍK ARCHITEKTI 1993-2021, ALL RIGHTS RESERVED