stehlík architekti novinky o nás realizace projekty ocenění kontakt rodinné domy

Urbanistické řešení

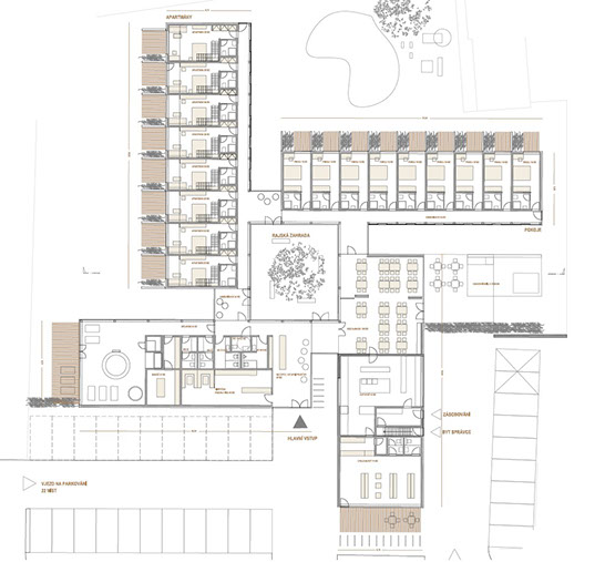
Inspirováni okolní krajinou s nížinným charakterem s velkým počtem lesních porostů jsme se rozhodli zvolit pro objekt penzionu Petra jednopodlažní zástavbu se sedlovou střechou, která jemně doplní charakter území. Objekt samotný tvoří čtyři jednopodlažní hmoty se sedlovou střechou uspořádané do půdorysu větrníku. Toto klasické řešení, inspirované tradiční zemědělskou usedlostí, přináší výhody v možnosti zachovat centrální prostor - srdce objektu v uchopitelném, lidském měřítku a naopak zbývající části - pokoje a apartmány otevřít do krajiny.

 

Architektonické řešení

Od jihu, od přístupové cesty orientujeme hlavní vstup s parkovištěm, které je rozděleno do dvou částí. První bude využívána každodenně a druhá bude zatravněna a bude sloužit pouze při plném obsazení penzionu hosty. Vedle hlavního vstupu, který slouží zároveň jako foyer restaurace umisťujeme prodejnu s vínem a dále na západ poté wellness, které bude sloužit především hostům penzionu. Restaurace , umístěná ve východním křídle penzionu, propojuje prostor centrálního dvora s terasou a posezením, které je umístěné na východ od objektu. Pokoje a apartmány umisťujeme směrem k východu a severu, kde se pozemek otevírá k přilehlému lesu. Naší snahou nebylo vytěžit z pozemku maximum, ale nalézt optimální poměr ve využití při zachování pocitu z otevřeného prostoru. Proto navrhujeme umístit celkem 9 dvoulůžkových pokojů a 8 dvoupatrových apartmánů pro 4-6 hostů. Důležitou součástí penzionu je také bufet, který je umístěn v jižním cípu restauračního křídla a lze jej využívat naprosto odděleně, tak aby zástupy cyklistů a rodin s dětmi nerušily klidný ráz penzionu.

 

 

PENZION PETRA ARCHITEKTONICKÁ SOUTĚŽ 2013 AUTOŘ: ING. ARCH. ONDŘEJ STEHLÍK, ING. ARCH. ALENA STEHLÍKOVÁ, BC. MICHAL STEHLÍK
INFO

© STEHLÍK ARCHITEKTI 1993-2021, ALL RIGHTS RESERVED